Get started with a FREE listing

Get started

Norman Park, Brisbane

Private room with own bathroom
Contact Jonathan

About the property

This house is amazing! It's split over 5 levels, with multiple decks, a wet bar, two huge living spaces, fully ducted air con throughout, a beautiful pool looking over Brisbane CBD and all in a very quiet neighborhood. It's nearly fully furnished (still adding a few finishing touches) but if you have any nice decor/art/plants that fit with the style, bring them along! We're good for furniture though, there's two huge fridges with ice makers etc, TV's throughout...everything you need.

Unfortunately, Jonathan has virtually exclusive use of the garage as a workshop and storage for his business and motorcycle racing. We do use the cellar as storage, and there's a huge undercroft under the house that's weatherproof if you have stuff to store.

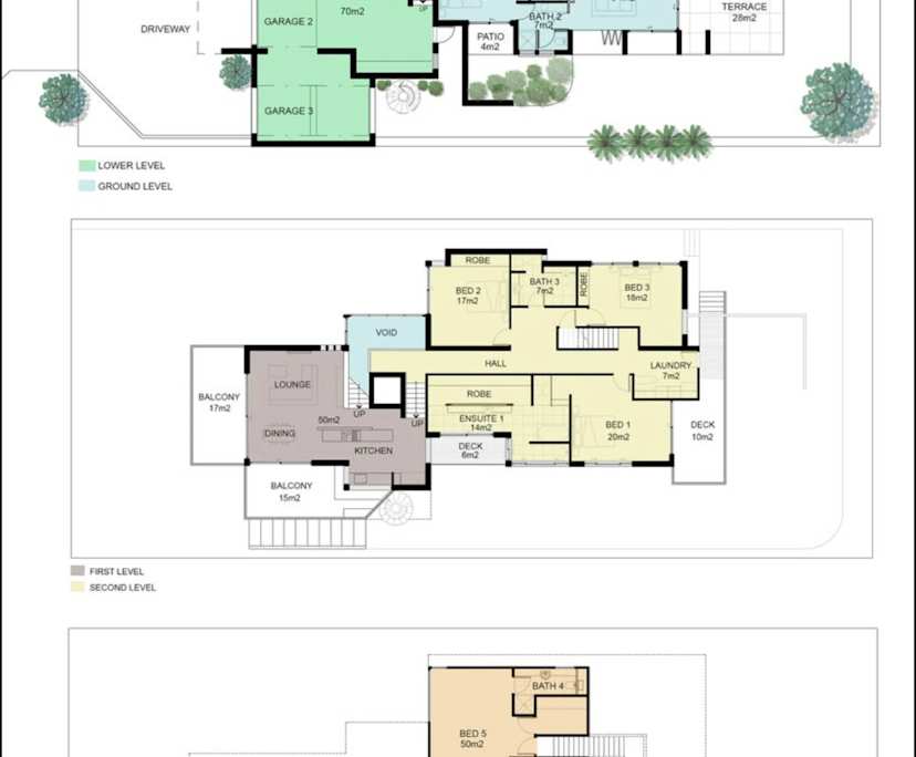
Your room will be Room #4 on the floorplan. It has it's own little patio off to one side, built-in-robe and a two-way bathroom. You have almost exclusive use of the bathroom, with the only exception being if anyone is ever using the downstairs living area - they may use the toilet, just because it's so far to the others. It's a super private part of the house, being the only bedroom on that level.

Message Jonathan to request an inspection

To inspect this room, send a message introducing yourself and ask to see their inspection times.

Property features
On-street parking
Unlimited internet included in rent

Room overview

Details

$400 weekly rent$1600 bond
Bills included in rent
Private room
Own bathroom
Minimum 9 months stayAvailable now
Women only
Unfurnished

Features

King bed
Wardrobe
Balcony

About the flatmates

Jonathan is a super active business owner working in the conservation industry. When he's not traveling for work, he's racing motorcycles, diving, somewhere in the bush looking for wildlife and being a dad to his twin girls (hence females only) which he typically has 2-3 days a week. They're very cute and very chill (I'm not biased, I promise), and he's nearly always out and about with them, or in the pool in summer.

Gen is a nurse and works huge hours. When she's not working, she's out watching gigs. Loves a wine and a chat when all our schedules (rarely) align.

Mya is new to the house, super friendly and works from home a lot.

Loading...